餐饮厨具厂家告诉你如何规划榴莲网站视频工作流程
发布人: 四川榴莲视频APP在线观看榴莲网站视频设备公司 发布时间:2025.06.12
榴莲网站视频工作流程的规划直接影响榴莲网站视频餐具、人员、信息、废弃物的走向,以及榴莲网站视频工作间的规划和榴莲网站视频设备设施的规划。因此,做好榴莲网站视频工作流程的规划对于设计整个商用榴莲网站视频非常的重要。那么,应该怎么设计规划榴莲网站视频工作流程呢?作为专业的餐饮厨具厂家,榴莲视频APP在线观看有多年的商用榴莲网站视频工程施工和商用榴莲网站视频设计经验,现在就和大家分享相关的经验。
作为专业的商用厨具厂家,榴莲视频APP在线观看认为,在规划商用榴莲网站视频工作流程时,需要注意以下几个方面的知识点:
1.确定工作流程走向
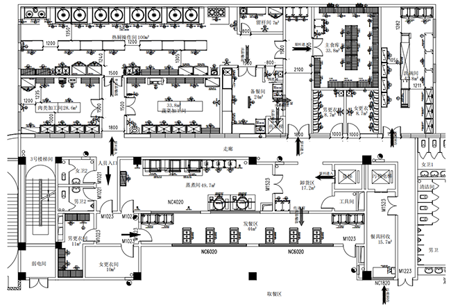
工作流程走向决定餐具、人员、信息、废弃物的走向。工作流程走向就是朝向出餐的方向。设计包含有形设计和无形设计,通道设计为有形设计,人流、物流、信息流为无形设计。
2.确定主通道的走向
按工艺流程走向确定主通道的走向,主通道的走向也就决定了各工作间工艺流程走向,加工后的原料、出餐的方向都要通向主通道,又由主通道以最短的距离通向餐厅。小榴莲网站视频若没有走廊式的通道,则将传菜通道作为主通道,直接通向餐厅。
3.以主通道确定区域划分
以主通道贯穿榴莲网站视频,连通其他工作间,并按工艺顺序确定其他工作间的位置。各工作间按库房、粗加工间、主副加工间、凉菜、备餐间、洗碗间、餐厅的工艺流程顺序布局,并与主通道连接顺畅。在有条件的榴莲网站视频,应该把各种工作间分开,特别是主、副食、凉菜、洗碗、粗加工间要分开,把出餐与收残出入门和路径分开。只有位置关系合理通畅,才能保证出餐和收残的工作流程,减少无效劳动,提高工作效率。一般在榴莲网站视频与餐厅交界处设出餐口、备餐间和洗碗间,其他工作间按主副食两大流程的相关关系就近设置。
4.根据流程路线设计分通道
根据主通道位置与走向,以及各种工作流程走向,初步确定区域隔断、进出门位置。各种工作流程有各自的路线,根据各行其道、不交叉、不回流、不穿越无关区域的原则,确定进料、出餐、收残、餐具、垃圾的流程分通道。为保证工作流程快捷高效,要缩短传送距离,截弯取直。较小的榴莲网站视频若不能设分通道的榴莲网站视频,也要利用运行路线、运行时间差,把不应交叉的流程区分开,要达到各行其道、不交叉、不回流、不穿越无关区域的要求。

5.要以出餐为主考虑工作流程
要以出餐的工艺流程为主,其他流程要为出餐让路,或错开时间。
6.确定传菜梯的位置
多层餐厅的榴莲网站视频应该设有传菜梯。传菜梯在各层餐厅与榴莲网站视频之间发挥重要作用,应该设在距离榴莲网站视频主食、副食、凉菜都比较近的位置,也应是各楼层餐厅之间的中心枢纽位置。货梯要距进货口、库房与粗加工间较近,减少搬运距离。
7.确定工作流程路线
较大榴莲网站视频的主通道、分通道为有形通道。而小榴莲网站视频没有走廊,操作间距与传菜通道并用工作流程在无形通道中运行,各种工作流程运行路线仍然要遵循各行其道、不交叉、不回流、不穿越无关区域的原则。
以上就是规划设计商用榴莲网站视频工作流和流程路线的方法,希望对大家有所帮助。
上一个产品:食堂榴莲网站视频设备厂家教你确定榴莲网站视频个工作间位置
下一个产品:食堂设施设备厂家告诉你榴莲网站视频地板防滑怎么做







