你的浏览器已禁用javascript,请启用javascript,否则网页将非正常运行!













      1. 榴莲视频APP在线观看,榴莲网站视频,榴莲视频黄色视频,榴莲视频免费在线观看

        学校榴莲网站视频工程













            1. 榴莲视频APP在线观看,榴莲网站视频,榴莲视频黄色视频,榴莲视频免费在线观看

              COMPOSITION

              酒店榴莲网站视频组成部分

              星级酒店的装饰、设备都十分豪华,拥有全面的综合服务,是社交、会议、娱乐、购物、消遣、保健等活动的中心。星级酒店首先应有布局合理、装饰豪华的西餐厅,能提供自助早餐和西餐正餐,需配备专门的西餐榴莲网站视频等;其次需开设具有特色、格调高雅的咖啡厅;具备功能齐全的小宴会厅、封闭式酒吧间等。星级酒店同时需要有布局合理、装饰豪华的中餐厅和规模较大的宴会厅等,应配备能够满足大型宴会需要的宴会榴莲网站视频,至少可以提供两种及以上风味的中餐等,为顾客提供更多就餐选择。

              酒店榴莲网站视频工程 酒店榴莲网站视频工程
              西餐榴莲网站视频 西餐榴莲网站视频
              酒吧间 酒吧间
              咖啡厅 咖啡厅
              中餐榴莲网站视频 中餐榴莲网站视频

              RegionalDivision

              酒店榴莲网站视频区域划分

              星级酒店的餐厅规模一般以客房的床位数作为计算依据,一个床位等于一个餐位,每一个餐位平均占地二平方米(不包括多功能厅或大宴会厅)。根据酒店所处的位置,如需要对店外餐饮消费者开放,则按照市场需求增加餐饮面积。为住客准备的就餐餐厅座位数不应少于床位数的80%,餐厅的建筑设计应按照现行的饮食建筑设计规范中有关餐馆部分的规定执行。

              榴莲网站视频面积一般为餐厅面积的30%-40%左右,榴莲网站视频与餐厅应紧密相连,为确保菜品的色、香、味等质量,在没有保温设备的条件下,从榴莲网站视频把饭菜送到客人的餐桌最好不超 过20米的距离。有些饭店受到场地或建筑结构、格局的限制,榴莲网站视频的加工间或点心间,甚至冷菜、烧烤等制作间,可以不与餐厅在同一楼层,但烹调榴莲网站视频必须与餐厅在同 一楼层。考虑到餐饮制作的效率和安全,尤其是会议、团队等大批量出品,可能需用推车服务,因此,烹调榴莲网站视频与餐厅应位于同一平面,不

              RegionalDivision

              酒店榴莲网站视频特殊性

              Design considerations

              榴莲视频APP在线观看对酒店榴莲网站视频把控

              酒店榴莲网站视频工程应注意的事项

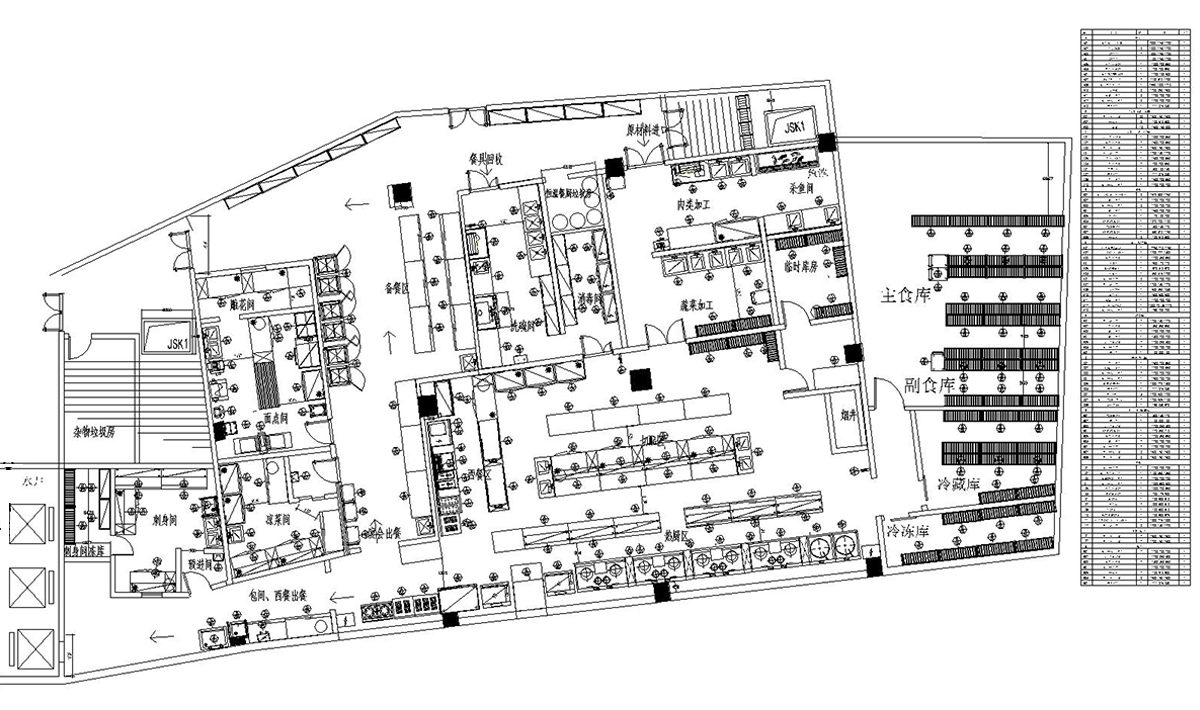
              酒店榴莲网站视频应具备加工间、制作间、备餐间、库房、洗碗消毒间、厨师长办公室及厨工服务用房等。 榴莲视频APP在线观看对布局、路线、分区、排水等方面均按照国家相关法律法规进行设计,考虑到餐饮的生产, 从原材料的采购、收货、入库、存储、保管到出库、粗加工、切配、烹饪、装盘出品等多方面进 行设计。应关注以下几个方面:根据生产、出品的次序布局; 避免进、出榴莲网站视频的物流产生交叉与 回流;避免人流与物流的交叉及员工流与客流的交叉;尽量缩短员工制作菜肴的行走路线;注意 洁、污,生、熟的分区;榴莲网站视频的所有排水须经过隔油池隔除油污后方可排放出。

              Implementation process

              工程实施流程

              Why did you choose us?

              为什么选择榴莲视频APP在线观看

              • 丰富的榴莲网站视频设计经验
              • 专业化施工队伍
              • 实力雄厚品质保障
              丰富的榴莲网站视频设计经验
              丰富的榴莲网站视频设计经验
              丰富的榴莲网站视频设计经验
              丰富的榴莲网站视频设计经验
              专业化施工队伍
              专业化施工队伍
              专业化施工队伍
              专业化施工队伍
              实力雄厚品质保障
              实力雄厚品质保障
              实力雄厚品质保障
              实力雄厚品质保障

              Service case

              工程服务榴莲视频免费在线观看

              成都恒鼎世纪酒店
              成都恒鼎世纪酒店
              同喜来酒店
              同喜来酒店
              达州腾达酒店
              达州腾达酒店
              成五粮液五星级接待中心
              成五粮液五星级接待中心
              成都321创意产业园创意餐厅
              成都321创意产业园创意餐厅
              金堂金尚城五星级酒店
              金堂金尚城五星级酒店
              成都翠玲珑新概念餐厅
              成都翠玲珑新概念餐厅
              巴中恩阳酒店
              巴中恩阳酒店

              About Ubat

              关于榴莲视频APP在线观看

              网站地图

              
              网站地图