绵阳榴莲网站视频设备公司告诉你好的商用榴莲网站视频设计有多重要
发布人: 四川榴莲视频APP在线观看榴莲网站视频设备公司 发布时间:2022.05.27
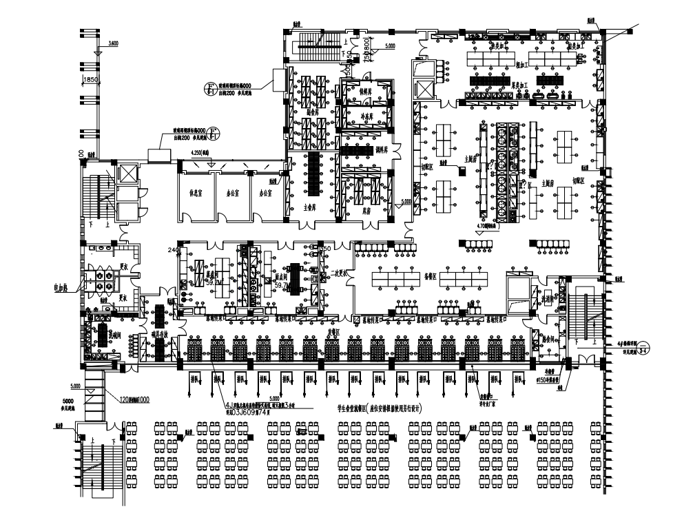
榴莲视频APP在线观看都知道商用榴莲网站视频的主要功能是为餐厅和食堂生产食物的场所,因此,设计出好的商用榴莲网站视频对餐厅和食堂的经营是非常重要的。如果商用榴莲网站视频空间设计合理,设备配置规划合适,对整个餐饮企业的经营来说是非常重要的。最近,不少绵阳的朋友就在网上资料商用榴莲网站视频的规划设计事情,虽然,榴莲视频APP在线观看不是绵阳榴莲网站视频设备公司,但是,作为长期在绵阳做商用榴莲网站视频工程的榴莲网站视频设备公司,现在榴莲视频APP在线观看就和大家分享相关的知识。
作为专业的四川榴莲网站视频设备公司,榴莲视频APP在线观看整理了商用榴莲网站视频设计重要性的相关知识,现在和大家分享如下:
1、提高厨师的工作效率
商用榴莲网站视频设计得合理方便,且设备先进,这样能够大大提升厨师的工作效率,也能加快出餐的速度。相反,如果榴莲网站视频的装修隔断过多,布局不够合理,操作就会不方便,大大影响出菜的速度和菜品的质量。
2、充分利用空间,节约成本
优秀的商业榴莲网站视频设计应该做到,能够合理规划空间、布置设备,使后厨设备资源,技术资源,物流资源可以得到集中管理,统一调配,减少一些不必要的重复,从而充分利用空间,节省成本。
3、提升店铺对外形象
餐饮店铺的榴莲网站视频与它的对外档次是成正比的,高端大气的餐饮店铺,后厨基本都是整洁美观、布局合理的;相反,一些路边摊的后厨就是空间狭小且环境卫生也不太OK的。因此,合理的商用榴莲网站视频设计规划很重要,它不仅能节省运营成本,也能提高榴莲网站视频工作效率,重要的是环境卫生也过关!
以上这些就是榴莲视频APP在线观看整理的关于商用榴莲网站视频设计的重要性的相关知识,希望对大家能够有所帮助。







