成都商用榴莲网站视频工程公司告诉你医院榴莲网站视频设计细节
发布人: 四川优百特榴莲网站视频设备公司 发布时间:2020.04.09
医院是给病人治病的地方,所以医院榴莲网站视频承担着为医生和病人提供餐饮服务的任务。但是,由于医院是特殊的场所,所以,医院的榴莲网站视频在设计上面也有其特殊性。那么,在设计医院食堂榴莲网站视频时,应该考虑哪些因素呢?又应该配置哪些设备呢?作为专业的成都商用榴莲网站视频工程公司,现在榴莲视频APP在线观看就和大家分享相关的知识。
作为成都商用榴莲网站视频工程公司,榴莲视频APP在线观看认为要设计医院榴莲网站视频可以考虑以下几个方面:
一、医院食堂榴莲网站视频设计方案
在设计医院食堂榴莲网站视频设计图时,应充分考虑以下几个方面:只有在充分考虑设计方案的情况下,才能使后期的医院食堂畅通,只有医生和病人才能让医生和病人出院。并且为患者的家人提供更好的膳食。
1、通风性:一般设计排气量为油烟排风设备,按80%的排风设计补充风量。此外,还要考虑合理的房间通风。只有医院食堂通风良好,才能让医院食堂厨师发挥得更好。
2、榴莲网站视频地板:榴莲网站视频地板必须使用防滑砖,在选择新颖实用的防滑砖之前,使用红钢砖仍然是一个有效的举措。
3、用水明沟:榴莲网站视频排水沟不应太浅,明渠表面应平整,高低无差别,做好露沟地面下的有机连接,做好排水沟末端防老鼠的工作。
4、榴莲网站视频灯光:榴莲网站视频灯光要实用,热菜加工要用足够的光来处理,以把握菜肴色泽,案板切配要有明亮的灯光,为了有效防止刀伤和追求精细的刀工,出菜找荷要有充足的灯光,减少混入餐厅和流入餐厅的碎片数量。
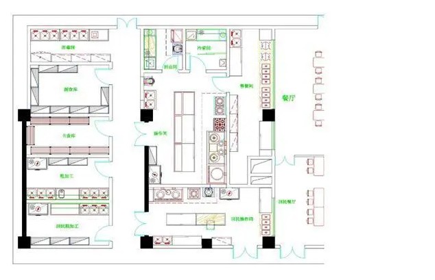
二、医院食堂榴莲网站视频设计功能间的介绍
粗加工区:为满足卫生要求,对原料分别进行清洗和切割,不得与榴莲网站视频其他区域交叉。
操作间:操作间是最集中的地方,小炒、蒸菜、炖菜、炸制类菜品、汤类均在此间制作。为此,其主要配置为用于炒菜的烹调范围、用于存储原料的冰箱、以及用于存储调味盘的桌柜。由于来访病人的用餐时间不统一,又都以粥类等流食为主要食物,故此间设置有煲仔炉,方便在做份量较少的食物时使用。
回民操作间:医院病人随处可见,所以榴莲视频APP在线观看需要考虑少数民族的饮食习惯,所以设置回民操作间,以满足少数病人对食物材料的特殊需求。
三、医院食堂榴莲网站视频设计规范
医院食堂对场所要求非常严格,因为医院是一个非常干净的场所,卫生标准高于其他地方。
1、不应在干燥地形、给排水条件和供电地区选择污染易发地区。
2、应远离排泄物、污水槽、垃圾站。
3、医院附近不得有有害气体、放射性物质和其他扩散污染源。
以上几点就是榴莲视频APP在线观看整理的关于医院榴莲网站视频设计的相关知识,希望能够对大家啊有用。
本文内容由四川榴莲视频APP在线观看榴莲网站视频设备公司提供,部分图片和文字或来自网络,如涉及知识产权请于成都榴莲网站视频设备公司榴莲视频APP在线观看联系。如需转载本文,请与有商用榴莲网站视频工程经验的老牌榴莲网站视频设备厂家榴莲视频APP在线观看网站管理员联系。若需获取更多商用榴莲网站视频设备、酒店榴莲网站视频设备、不锈钢厨具产品信息,欢迎各位来电来函,榴莲视频APP在线观看将与大家共同分享行业资讯。







